Szanowni Państwo,
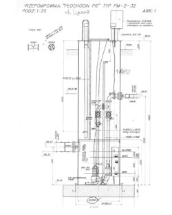
ZWiK Ożarowie Mazowieckim zaprasza do składania ofert w postępowaniu na „Remont komory przepompowni ścieków sanitarnych, usytuowanej w SHR Płochocin przy ul. Lipowej i Mazowieckiej, na działce nr ewidencyjny 29/29, gmina Ożarów Mazowiecki” wg załączonej dokumentacji przetargowej.
